AIRSTREAM 5952
Induktionskochfeld mit integriertem Dunstabzug NEU IN MATTGLAS
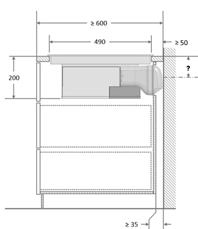
Geräteabmessungen: 590 x 520 x 204 mm / R=5
Ausschnittmaß: 560 x 490 mm
Falzmaß: 594 x 524 mm / R=7
Falztiefe: 5 mm
Falzbreite: 12 mm
Gehäusehöhe: 200 mm (+ 4 mm Glas)
- 9 Lüferstufen + Powerstufe
- Timer- und automatische Nachlauffunktion für Lüfter
- automatische, auf Kochzonen abgestimmte Lüftersteuerung
- Filterreinigungsanzeige
- Ansauggitter Mattschwarz
- Stabiles Ganzmetall-Gehäuse
- interner Motor 900 m3/h – 69 dBA
- herausnehmbarer Lüfterboden
- Umluft-Plisseefilter von oben zu entnehmen
- Schublade unter Lüftergehäuse zur Reinigung
- Metall-Fettfilter in V-Form von oben zu entnehmen
Induktionskochfeld für flächenbündigen oder aufliegenden Einbau:
- 4 Kochzonen inkl. Brückenfunktion:
Ø 170 mm - Nennleistung/Booster:
4x 1400 W/2100 W, Gesamtleistung 7570 W - Technik: EGO Induktion
- Kochfläche: Ceran Essential matt
- Steuerung: Mono-Slider
- Elektroanschluss: 220 - 240 V / 400 V, 1-2 phasig + N + E
Funktionen
Bestellinformationen
7225 590 AirStream 5952, Filtersystem: Abluft
7225 051 Plisseefilter 59, Filtersystem: Umluft
Alle Angaben ohne Gewähr. Irrtümer und Änderungen vorbehalten.
zurück zur Übersicht